结构: 重型渣浆泵为悬臂、卧式双壳轴向吸入离心渣浆泵。泵的吐出口位置可根据需要按45℃间隔,旋转八个不同的角度安装使用。
材质: 重型渣浆泵的泵体具有可更换的耐磨金属内衬,叶轮、护套、护板等过流部件均采用耐磨金属,如 高铬材质A05。
使用: 在小流量低扬程区域内,可以输送强磨蚀渣浆;在高扬程大流量区域内输送轻磨蚀渣浆。适用于冶金、矿山、煤炭、电力、建材等工业部门输送强磨蚀、高浓度渣浆,该类型泵也可以多级串联使用。
密封形式:重型渣浆泵的轴封可采用填料密封、副叶轮密封、填料加副叶轮密封、机械密封等型式。
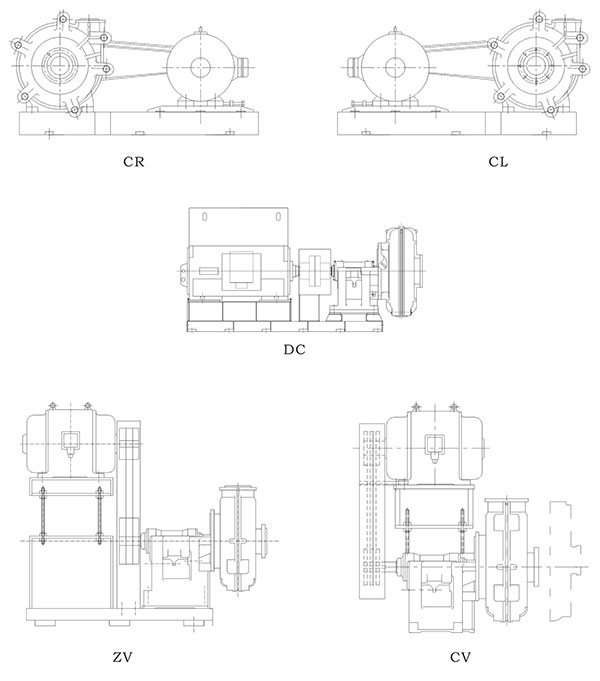
传动型式: DC直联传动,CR平行皮带传动,ZVZ上下皮带传动,CV立式皮带传动等型式。
型号意义:
举例:4/3C AH 解释: 4 - 吸入口径; 3 - 吐出口径; C - 托架类型; AH - 产品系列

传动方式


| AH、M型渣浆泵清水性能曲线: |
型号 | 允许配带最大功率(kw) | 清 水 性 能 | 叶轮 | ||||||
流量Q | 扬程H | 转速n | 最高效率η(%) | 汽蚀余量NPSH) | 叶片数 | 叶轮直径(mm) | |||
(m3/h) | (L/S) | ||||||||
1.5/1B—AH | 15 | 12.6-28.8 | 3.5-8 | 6-68 | 1200-3800 | 40 | 2-4 | 5 | 152 |
2/1.5B—AH | 15 | 32.4-72 | 9-20 | 6-58 | 1200-3200 | 45 | 3.5-8 | 5 | 184 |
3/2C—AH | 30 | 39.6-86.4 | 11-24 | 12-64 | 1300-2700 | 55 | 4-6 | 5 | 214 |
4/3C—AH | 30 | 86.4-198 | 24-55 | 9-52 | 1000-2200 | 71 | 4-6 | 5 | 245 |
4/3D—AH | 60 | ||||||||
6/4D-AH | 60 | 162-360 | 45-100 | 12-56 | 800-1550 | 65 | 5-8 | 5 | 365 |
6/4E-AH | 120 | ||||||||
6/4D-AH | 60 | 180-396 | 50-110 | 7-61 | 600-1600 | 55 | 3-8 | 4 | 372 |
6/4E-AH | 120 | ||||||||
8/6E-AH | 120 | 360-828 | 100-230 | 10-61 | 500-1140 | 72 | 2-9 | 5 | 510 |
8/6R-AH | 300 | ||||||||
8/6E-AH | 120 | 360-828 | 100-230 | 7-52 | 400-1000 | 70 | 2.5-6 | 4 | 536 |
8/6R-AH | 300 | 360-828 | 100-230 | 7-52 | 400-1000 | 70 | 2.5-6 | 4 | 536 |
10/8ST-AH | 560 | 612-1368 | 170-380 | 11-61 | 400-850 | 71 | 4-10 | 5 | 686 |
12/10ST-AH | 560 | 936-1980 | 260-550 | 7-68 | 300-800 | 82 | 6 | 5 | 762 |
14/12ST-AH | 560 | 1260-2772 | 350-770 | 13-63 | 300-600 | 77 | 3-10 | 5 | 965 |
16/14ST-AH | 560 | 1368-3060 | 380-850 | 11-63 | 250-550 | 79 | 4-10 | 5 | 1067 |
16/14TU-AH | 1200 | ||||||||
10/8E-M | 120 | 540-1440 | 150-400 | 14-60 | 600-1100 | 73 | 4-10 | 5 | 549 |
10/8R-M | 300 | ||||||||
应用
AH,HS系列离心式重型渣浆泵专为冶金行业,采矿业,煤炭,电力,化工,建材等工业部门处理高磨损,高密度浆料而设计。这些型号的泵也可以安装为多级系列。
该系列离心渣浆泵主要用于增压泵,脱水滤网泵,尾矿泵,Metboom泵,Feedprep泵,清扫器进料泵,再清洗泵,球磨机卸料泵,Ruffer进料泵,转移给Feedprep泵,Metboom回流泵,浓密底流泵,浓尾尾泵,浓密底流泵,冲洗泵,稀释泵,再清洗泵,粗给料泵,尾矿增压泵,磨浆泵,磨粉给水泵,盘式过滤池冲洗泵,混合罐式渣浆泵,气体清洗渣浆泵,风箱渣浆泵,颗粒手洗涤渣浆泵,工艺循环泵,洗涤器渣浆泵,柱形颗粒料筛管泵,筛分料泵,炉渣清洗器渣浆泵,化妆品循环水泵,反冲洗泵,文丘里洗涤器渣浆泵,澄清器底流泵,管道输送泵等
总 机:0311-85853633
邮 箱:3044596250@qq.com
地 址:河北省石家庄泵业装配制造基地